Nabídky RK
Nabídky RK

Napsat makléři

PRODÁNO

Prodej multifunkčního komerčního areálu, 8.874 m2

Chrastava - Dolní Chrastava

U Nisy 114

PRODÁNO

Popis areálu

Hledáte rozsáhlý prostor pro výrobu, logistiku nebo investiční příležitost se stabilním výnosem? Nabízíme k prodeji multifunkční areál s celkovou užitnou plochou 8.874 m2, situovaný strategicky přímo u sjezdu z rychlostní silnice R35 v Chrastavě.

Skladba areálu (3 hlavní objekty)

Celý soubor nemovitostí nabízí variabilní využití od administrativy přes lehkou výrobu až po těžké skladování:

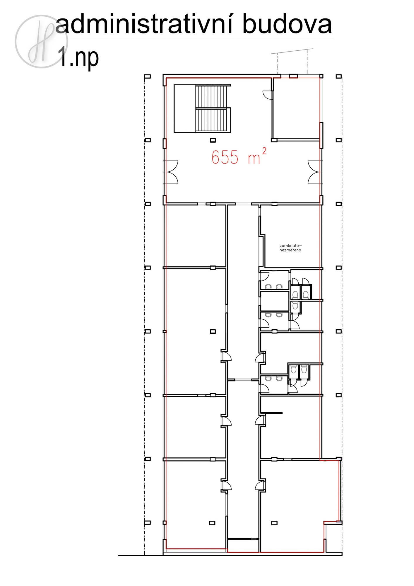
  • Administrativní budova (1.458 m2): Dvoupodlažní objekt s potenciálem přestavby na čistou výrobu či moderní kancelářské zázemí.
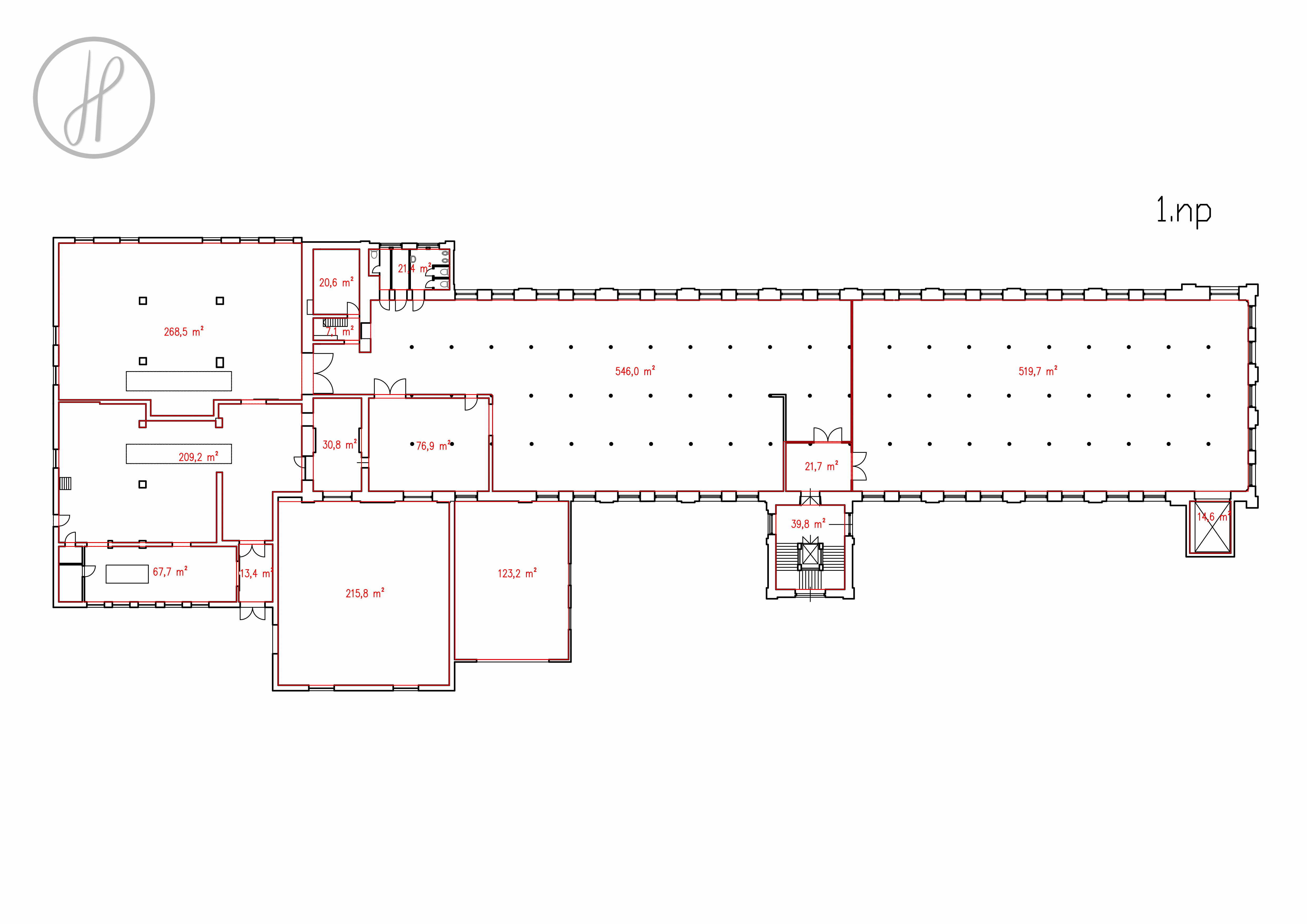
  • Hlavní výrobní budova (6.857 m2): Pětipodlažní objekt s nákladním výtahem o nosnosti 2.800 kg. Klíčovým parametrem je nosnost podlah ve 2. až 4. NP, která činí nadstandardních 2.000 kg/m2. Přízemí disponuje nákladovou rampou.
  • Přízemní dostavba (559 m2): Jednopodlažní hala vhodná pro rychlou expedici nebo sklad.

Pozemky a rozvojový potenciál

Celková plocha pozemků činí 11.990 m2. Dle územního plánu jsou parcely zařazeny v kategorii lehká výroba (VL.15 a VL.18). Areál je kompletně oplocen, střežen PCO a disponuje dostatečnou kapacitou parkovacích míst přímo u budov.

Ekonomické a technické údaje

Areál představuje zajímavou investici s okamžitým cashflow:

  • Měsíční výnos z nájmu: 340.706 Kč (včetně DPH).
  • Energetické zázemí: Vlastní plynová kotelna v areálu.
  • Logistika: Vynikající dostupnost pro kamionovou dopravu díky těsné blízkosti R35.

Pro podrobné technické zprávy nebo prohlídku areálu mě kontaktujte.

Váš Liberecký makléř Jan Havič

Fotografie nemovitosti

Půdorysy nemovitosti

Kontaktujte

Zajímají vás další informace, nebo se chcete potkat osobně?
Využijte formulář níže, napište, nebo zavolejte.
Jan Havič

Jan Havič

Liberecký makléř